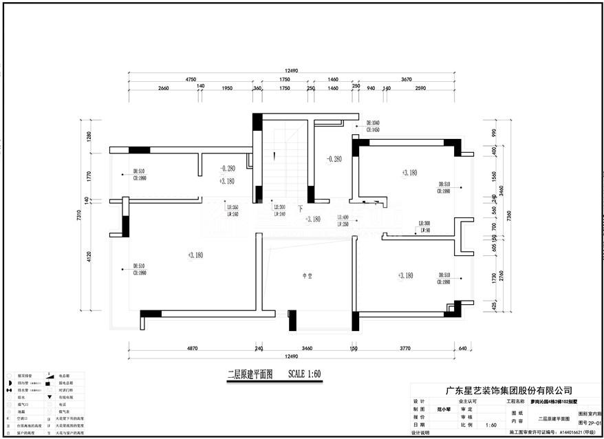
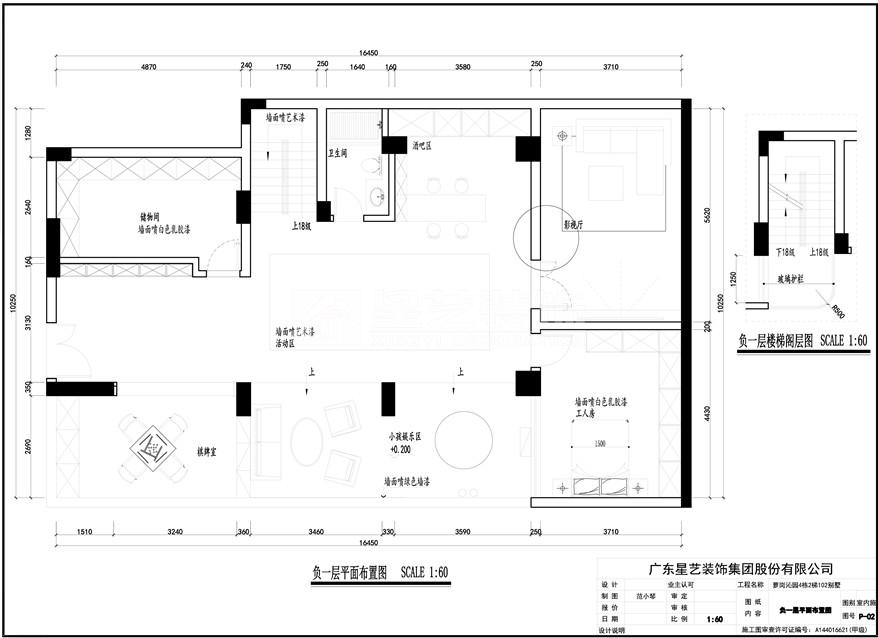
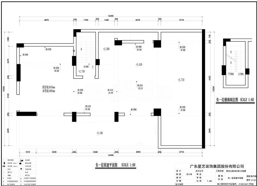
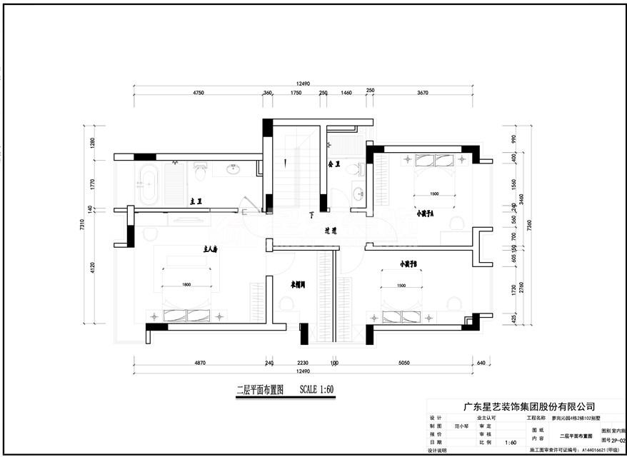
方案展示
-
星藝設計師的其它設計案例
-
簡約風格的其它設計案例
裝修預約
- 您的姓名: *
- 聯系方式: *
- 樓盤名稱:
- 建筑面積: m2
- 裝修設想:
- 取消
關注我們
分享到
微信

立即預約
在線咨詢
在線客服
公安部備案號 44010602004978號