方案展示
設計說明
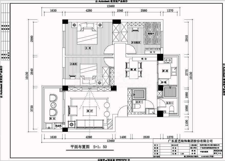
本案空間簡潔,色調以暖色調為主,業主需保留原有的木地板,原有木地板是偏深紅色,在搭配設計時,用灰色木地板上墻,整體空間效果調和下,家居都是以現代為主,使得整個空間多一絲時尚感。色調上以淺色為主:白色、灰色,木等。而材質方面以自然的元素,如木??柔軟質樸的紗麻布制品等。
[展開]-
星藝設計師的其它設計案例
-
現代風格的其它設計案例
關注我們
分享到
微信

立即預約
在線咨詢
在線客服
公安部備案號 44010602004978號